Residence Options
One bedroom
1 Bedroom
1 Bedroom + Rooftop
1 Bedroom + Family Room + Maid’s Quarters
Two bedrooms
2 Bedrooms
2 Bedrooms + Maid’s Quarters
2 Bedrooms + Rooftop
Three bedrooms
3 Bedrooms + Maid’s Quarters
example of apartment plans
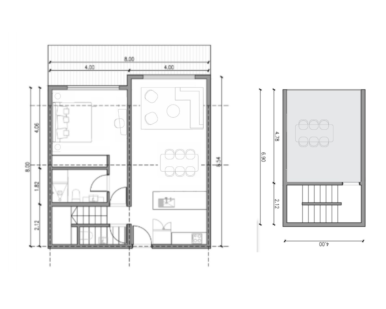
ONE BEDROOM + ROOFTOP
Duplex layout with private rooftop.
70 m² interior (753 ft²) + 12 m² terrace (129 ft²) + 18 m² rooftop (194 ft²).
1 bedroom + rooftop + guest toilet.
- UF 88 & 89 (Level 4): comfortable terraces with lake or green views. Sunrise lights up the living room. Possible sea view from the rooftop.
 - UF 95 & 96: located on level 5 with rooftop on level 6. Sunrise in both living room and bedroom. Elevated views over lake and sea.
 

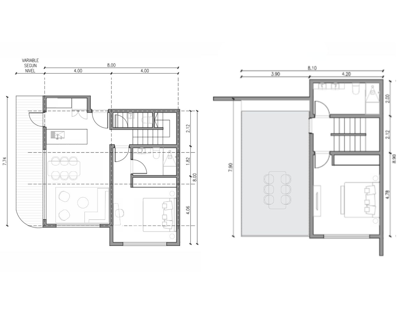
TWO BEDROOMS + ROOFTOP
Vertical duplex layout.
Master bedroom on the main floor, secondary bedroom upstairs.
96 m² interior (1,033 ft²) + spacious terrace overlooking the pool and lake.
Sunrise lights up the living and social area.
- UF 62 and 67: green area views from level 4, sunset entering the living room.
 - UF 80: L-shaped terrace with lake and sea views. Enjoy the sunrise from the living room.
 - UF 83 and 84: golf course view. UF 83 receives sunrise in the master suite, while UF 84 gets morning light in the living room and sunset in the first-level bedroom.
 

THREE BEDROOMS + MAID´S QUARTERS
The largest unit on the ground floor.
130 m² interior (1,399 ft²) + 35 m² semi-covered terrace (377 ft²) + 67 m² garden (721 ft²).
2 bedrooms, master suite with walk-in closet, service room, guest toilet.
Last unit available.
Sunrise views from both the living room and bedrooms.
Pre-installed plumbing for future picuzzi installation.
Your Private Resort, Every Day
Wellness & Relax
- Gym
 - Sauna
 - Rooftop
 
Family & Pets
- Children’s Playground
 - Pet Area
 - Private Gardens
 
 Lifestyle & Business
- Coworking Space
 - Sports Bar
 - BBQ Area
 - Walking Trail
 
Security & Services
- Hotel-Style Reception
 - 24/7 Security
 - Underground Parking
 
Discover your place
Receive pricing, floor plans, availability, and private incentives.
- 1 829 496 6284
 - FHHV+23F, Punta Cana 23000, Dominican Republic